Description

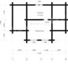
Общий размер дома: 7,4х11,2 м
Общая площадь: 165 м2
Площадь веранды: 7.74 м2
Количество комнат: 4
Этажность: 2
Цена от 2 025 000 руб.
Материалы для базовой комплектации:
- Наружные стены, диаметр* бревна — 22х24 ⌀;
- Внутренние стены, диаметр* бревна — 22х24 ⌀;
- Рубленные фронтоны, бревно — 18х24 ⌀;
- Внутренние перегородки, брус — 100х150 (на ребро)
- Лаги пола, межэтажные, подстропильные — 100х150 (на ребро);
- Стропила, брус — 50х150 (на ребро);
- Обрешётка, доска — 25х150;
- Черновой пол — 25х150;
- Межвенцевой утеплитель, мох (северный красный);
- Рубероид на временную кровлю крыши (чистовая кровля рассчитывается отдельно);
- Материал на изготовление строительных лесов;
- Гидроизоляция на фундамент, гидроизол;
- Рабочий проект;
- *- Работаем с любым диаметром. Закажите расчет своего проекта →

- Монтаж сруба с внутренними перегородками;
- Врезка балок половых, межэтажных, подстропильных;
- Прокладка межвенцового утеплителя мха;
- Подвивка мха;
- Прошкантовка стен деревянными нагелями;
- Монтаж стропильной конструкции;
- Укладка обрешётки;
- Кровля временной кровлей-рубероид;
- Укладка на фундамент гидроизоляции;
- Монтаж и демонтаж строительных лесов;
- Обработка нижних венцов и балок в подарок.
Фундамент
— Ленточные — от 13000 руб. м.куб под ключ
— Железобетонные сваи — от 5500 руб. шт.
— Винтовые сваи — от 4500 руб. шт.












