Description

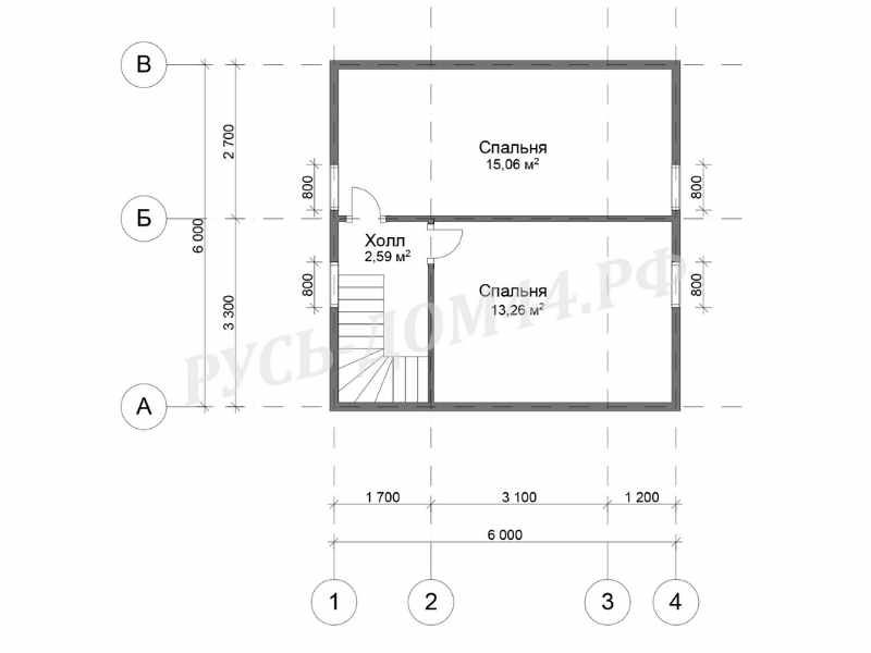
Двухэтажный дом из бруса Проект Коломна 6×8
-
Мы строим более 10 лет. И каждый дом делаем по индивидуальному проекту!
-
Мы меняем планировки и назначение внутренних помещений. по пожеланиям заказчика.
-
Типовой проект это только основа. А базовая комплектация поможет Вам ориентироваться в ценах этого года.
Материалы для базовой комплектации:
-
Внутренние перегородки, брус — 100х150 (на ребро)
-
Лаги пола, межэтажные, подстропильные — 100х150 (на ребро)
-
Стропила, брус — 50х150 (на ребро)
-
Обрешётка, доска — 25х150
-
Черновой пол — 25х150
-
Межвенцовый утеплитель
-
Рубероид на временную кровлю крыши (чистовая кровля рассчитывается отдельно)
-
Материал на изготовление строительных лесов
-
Гидроизоляция на фундамент, гидроизол
-
Рабочий проект
Перечень работ:
-
Монтаж дома с внутренними перегородками
-
Врезка балок половых, межэтажных, подстропильных
-
Прокладка межвенцового утеплителя
-
Монтаж стропильной конструкции
-
Укладка обрешётки
-
Покрытие здания временной кровлей | материал - рубероид
-
Укладка на фундамент гидроизоляции
-
Монтаж и демонтаж строительных лесов
-
Обработка нижних венцов и балок в подарок
Стоимость фундамента:
-
Ленточные — от 13000 руб. м.куб под ключ
-
Железобетонные сваи — от 5500 руб. шт.
-
Винтовые сваи — от 4500 руб. шт.
Вам могут быть интересны дома другой планировки:
Проект Пушкино 7х7 м
Проект Домодедово 9х12 м
Проект Орехово-Зуево 6х8 м
Проект Пушкино 7х7 м
Проект Домодедово 9х12 м
Проект Орехово-Зуево 6х8 м
Проект Коломна 6х8 м
Проект Серпухов 8х8 м

Проект Мытищи 8х10 м
Проект Коломна 6х8 м
Проект Серпухов 8х8 м

Проект Мытищи 8х10 мЧастые вопросы при обсуждении проекта:
Посмотрите наш каталог и выберете подходящий проект. Выбрать планировку, параметры объекта. Вариант и форму крыши.
Дальше нужно оставить заявку. Мы перезвоним, уточним детали и сделаем расчет проекта бесплатно.
Мы не сделали не одного похожего дома. Работая над проектом мы учтем ваши пожелания и рельеф стройплощадки.
Предлагаем готовые проекты брать за основу. Дальше Вы даете свои пожелания и особенности участка для застройки в виде файла. Мы это учтем.
Наш опыт позволяет сделать брусовые дома любой сложности и стиля: гостевые, загородные дома для круглогодичного проживания, с балконом, с эркером, со вторым светом на высоту второго этажа. Все это внесем в проект и доработаем его по Вашим пожеланиям.
Персональных условия, так же как и варианты доставки всегда прописываем в договоре.
Построим теплый уютный деревянный дом быстро и надежно. Мы также строим жилые дома, бани и малые архитектурные формы из бруса и бревна.
Каждый хозяин выбирает сам стоит ли переплачивать за клееный брус. Нужно ли использовать клей в большом количестве для элементов своего здания.
Наше производство расположено в самом центре костромской области. Рядом делянки. Мы не экономим используя некачественный лес.
Поэтому мы можем обрабатывать каждое лучшее бревно по технологии профилированного бруса. При правильной монтоже на качественные нагили и последующей усадке коробление бревна в срубе исключается.
Наша компания может собрать ваш дом из лучшего домокомплекта и даст гарантию 2 года на возведенные стены. Это исключает риски при строительстве. А отзывы о наших домах можно посмотреть на отдельной странице.
Преимущества жилья из профилированного бруса.
В первую очередь это минимальные вложения в отделку помещений. Как правило наши специалисты делают шлифовку стен и пропитку их.
Профиль бруса является надежным барьером для движения воздуха. Выбор толщины стен за вами. Мы делаем ширину бруса 145 и 195 мм.
Поэтому мы всегда рекомендуем изготовить постройку из профилированного бруса зимнего северного леса. Это надежность на 100 и более лет.
Строительные работы на небольшой строительной площадке за городом мы проводи очень аккуратно. На объектах мы работаем ежедневно и весь процесс контролирует мастер. Поэтому все постройки и насаждения будут бережно сохранены при возведение и монтаже дома.
Мы делаем малые архитектурные формы на участке. Беседки, качели, барбекю и зоны отдыха в едином стиле с домом и баней.
Решение реализовываем от основного строения.
Кровля для дома может быть типовой двускатной или односкатной или же сложной ломаной конфигурации.
Маленькие окна могут стать украшением фасада наряду с большими и панорамными.
Все возможные варианты мы учтем при проектировании и согласуем с вами.
Заказывая проект в Русь Дом 44 Вы получаете комфортное жилье из лучшей натуральной древесины костромского северного леса. Внутри помещения всегда комфортная среда для человека и животных.
Сколько может стоить хороший дом под усадку в Московской области?
Недорогой летний дом одобдется до 700 тыс. Рублей. Строим такие в Московской области и в регионах.
Зимние дома из дерева сечением 200 мм с гаражом и котельной будет стоить от 1,5 млн. рублей в зависимости опт площади.
Высокая цена на дом не всегда будет гарантией качества. И перед началом строительства мы всегда рассказываем что и как делаем.














